logo

Rolling Hall will always be with artists as a space of creativity,
presentation for artists and a culture complex space to give pride to the general public.

BUSINESS > ¹«´ëµµ¸é

¹«´ëµµ¸é

¿¬±¸¼¾ÅÍ¿¡ ´ëÇÑ Á¤º¸ ¸®½ºÆ®
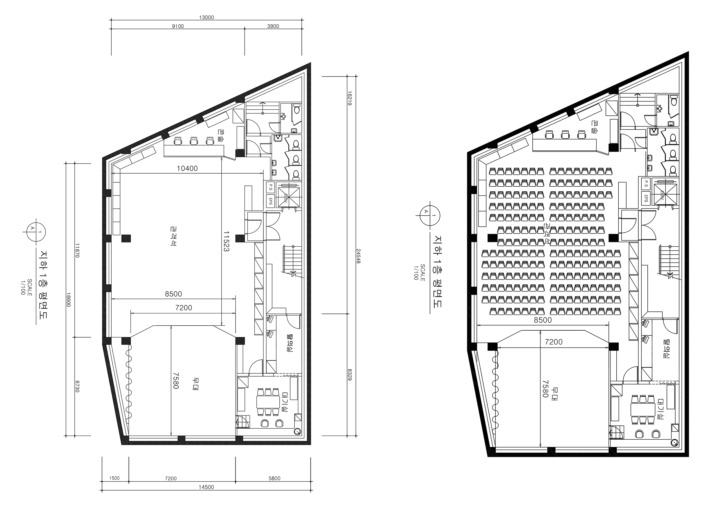
±Ô¸ð Áö»ó 2Ãþ, ÁöÇÏ 1Ãþ
½Ã¼³ Áö»ó2Ãþ - »ç¹«½Ç, È­Àå½Ç / ÁöÇÏ1Ãþ - °ø¿¬Àå, ´ë±â½Ç, È­Àå½Ç
ÀÚ·á ¹«´ëµµ¸é ´Ù¿î·Îµå